view from alley
reception area
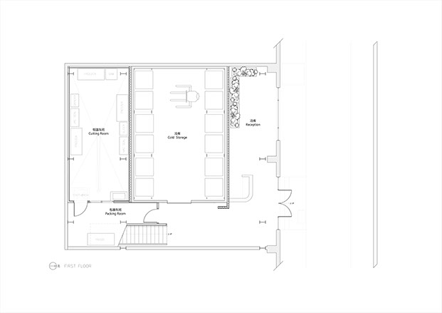
first floor food production room
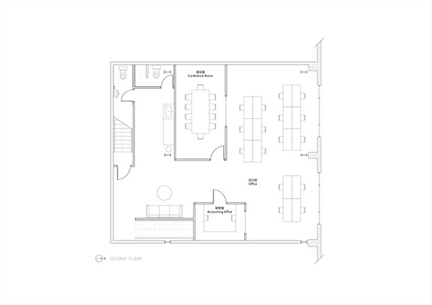
second floor office
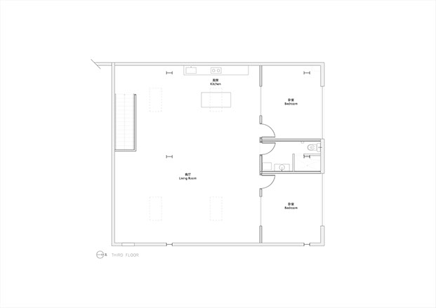
third floor apartment
long section
first floor plan
second floor plan
third floor plan
<
>
PROJECTS
Locktown Barn Conversion
Pennington Barn Conversion
Woodens Lane Built-Ins
Mountain Church Patio
Princeton Addition & Landscape 2
Veblen House & Cottage Restoration
Princeton Squash Court ADU & Landscape
West Windsor Restoration Garden
Hopewell Music Studio
Princeton Addition & Landscape
Princeton Pollinator Garden
Lawndale Streetscape
Williamstown House
London Basement Conversion
Beijing Photography Studio
Beijing Food Startup
ABOUT
Location: Beijing, China
Program: Office, cold storage, food processing facility, apartment
Size: 4500ft2 (400m2)
Year: 2017
Status: built
Design Team:
Sigmund Lerner
Hopewell, New Jersey
phone: +1 609-273-4349
email: studio@landandstudio.com
© 2024 LAND AND STUDIO LLC