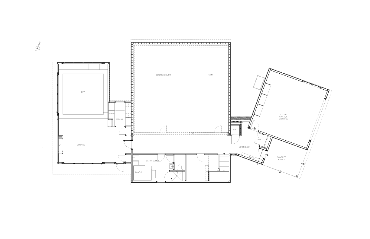
Princeton Squash Court ADU & Landscape

Location: Princeton, NJ

Program: Squash court, spa, locker room, accessory dwelling unit, smother cropping soil preparation for native meadow seeding, soil building for stormwater infiltration

Size: ADU 5300ft2 (490m2)

         Parcel 0.5 acres

Year: 2020

Status: built

 

Design Team:

Land And, ldfSTUDIO

Civil Engineer:

Van-Note Harvey

Structural Engineer:

James B. Huffman, PE

General Contractor:

ERA Construction

Seeds and Plants:

Toadshade Wildflower Farm, Gino's Native Plants

Landscape Install:

AC Black, Land And

 

Hopewell, New Jersey

phone: +1 609-273-4349

email: studio@landandstudio.com

© 2024 LAND AND STUDIO LLC