view below garden
proposed basement plan
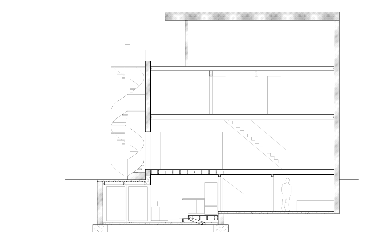
basement addition, proposed section
victorian fireplace revealed in demolition
<
>
PROJECTS
Locktown Barn Conversion
Pennington Barn Conversion
Woodens Lane Built-Ins
Mountain Church Patio
Princeton Addition & Landscape 2
Veblen House & Cottage Restoration
Princeton Squash Court ADU & Landscape
West Windsor Restoration Garden
Hopewell Music Studio
Princeton Addition & Landscape
Princeton Pollinator Garden
Lawndale Streetscape
Williamstown House
London Basement Conversion
Beijing Photography Studio
Beijing Food Startup
ABOUT
Location: London, England
Program: Basement Apartment
Size: 500ft2 (46m2)
Year: 2019
Status: built
Design Team:
Land And, Adrian Blomfield
Hopewell, New Jersey
phone: +1 609-273-4349
email: studio@landandstudio.com
© 2024 LAND AND STUDIO LLC