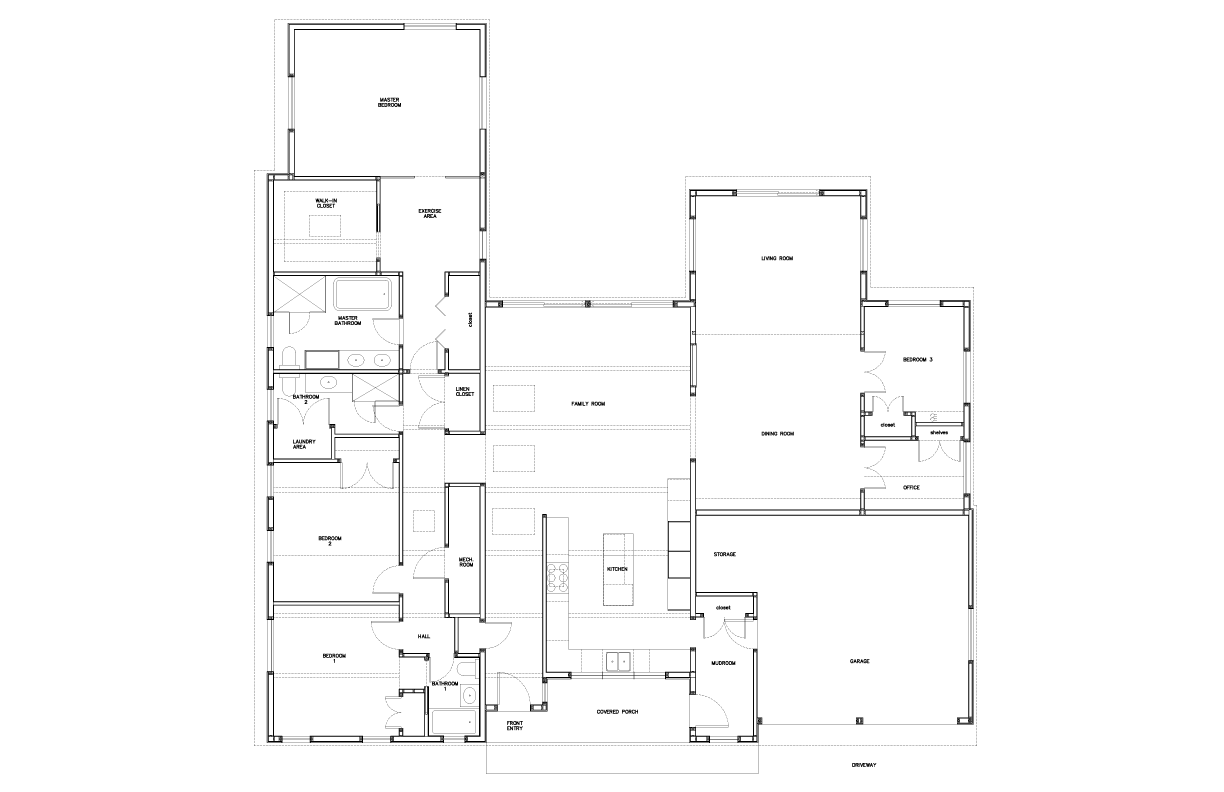
Princeton Addition & Landscape

Location: Princeton, NJ

Program: Single family residential full gut renovation and addition, soil restoration, rain gardens

Size: House 3700ft2 (340m2)

         Parcel 0.3 acres

Year: 2021

Status: built

 

Design Team:

Land And, ldfSTUDIO

Plants:

Kind Earth Growers, Gino's Native Plant Nursery

Structural Engineer:

James B. Huffman, PE

 

Hopewell, New Jersey

phone: +1 609-273-4349

email: studio@landandstudio.com

© 2024 LAND AND STUDIO LLC